top of page

Furniture Design
The following services are offered while retaining excelent stile and sustainability of the project:
.- Project (plans)
.- Surveying 2D and 3D
Here you will find some examples of designs that have made furniture:

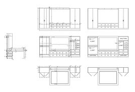
Closet furniture - bed
Project: furniture closet that in the night pliega and turns into bed
Owner: Arq. Carlos Jacome
Year of accomplishment: 2006
Location: Macuto, Edo. Vargas. Venezuela


Closet
Project: Walking closet
Owner: Jose Orjuela
Year of accomplishment: 2017
Location: Miami, Florida
Closet
Project: Walking closet
Owner: Jose Orjuela
Year of accomplishment: 2017
Location: Miami, Florida

Walking closet
Project: Walking closet
Owner: Jose Orjuela
Year of accomplishment: 2017
Location: Miami, Florida
bottom of page




